Works
施工事例
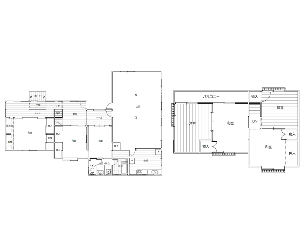
◆家族構成:7人(30代ご夫婦、お子さん4人、祖母)◆築年数:築48年◆間取り:旧店舗併用住宅 8DK+旧店舗 → 6LDK+倉庫◆工事面積:182.22㎡◆工事内容:水回り交換/間取変更/外壁改修/屋根一部改修/内装◆価格:1000万円~◆分類:二世帯ライフ/子育てライフ◆テイスト:ー
水回り交換・間取変更・外壁改修・屋根一部改修・内装












築50年ほど経過し、外観もあちこち傷んでいましたので、断熱性能の向上、広範囲による外壁荷重の負担軽減を考え金属サイディングを採用。地域に溶け込んだモダンでシックなデザインに仕上げました。

車・人通りの多い西側外壁はアクセントとしてレンガ調に。モダンでシックな印象になりました。

玄関は西側に広く拡大しました。大家族でも玄関が込み合わず、スムーズにお出かけできます。

なんといっても約24帖程の大空間のLDK。以前、ご両親で営まれていた店舗の一部を住居スペースとして活用し、間仕切りのあったキッチンを解体して一体化しました。断熱工事を施し、住まいの性能をアップさせ、構造材の柱はアクセントとしてモダンに仕上げました。

LDKにある扉を開けると、収納たっぷりのパントリーがあります。普段や来客時のおもてなしもスムーズにできます。

キッチンカウンター・食器棚は造作で作成。奥様が使いやすい仕様にして、収納力もたっぷり確保できるようにしました。

一つに繋がっていたトイレから浴室までの水廻り空間を一新。子ども達の成長に合わせてプライバシーに配慮した間取りをご提案しました。特に断熱材とペアガラスにより湿気と寒さが大きく改善され、掃除もしやすくなりましたと喜んでいただけました。

タイルでひんやりとしていたトイレも一新。LIXILアメージュZAシャワートイレ。湿気と寒さが大きく改善され、掃除もしやすくなりました。

構造上取れなかった壁は空間の仕切りとして活用し、ヴィータス収納でワークスペースと収納を確保しました。大きい窓が4つあり明るく開放的なセカンドリビングの誕生です。。

右手前にあるのが、LIXILヴィータス収納です。収納とワークスペースをおしゃれに確保しました。扉のあるセカンドリビング側のクロスのみ変えて、お部屋のアクセントに。

無窓居室のため、天窓と室内窓を設け、やわらかな自然光を取り入れられるよう工夫しました。晴れた日中は、照明を点けていなくても明るく、生活動線もスムーズで快適になりました。